ST DENIS LES BOURG - Local d'activités

244, Rue du Point du Jour
01000 Saint-Denis-lès-Bourg

Étage : 1
Pas de frais d’agence, ni frais de dossier
Dépôt de garantie 763 €

Loyer Mensuel C.C.
487 €
Superficie : 19m2
Réf. Semcoda : 4197-03-02-011-cab_1
Contactez-nous

Bureau à Saint-Denis-lès-Bourg

À LOUER – Local d'activités de 19.54m² – SAINT DENIS LES BOURG (RD117 – Avenue de Bresse)

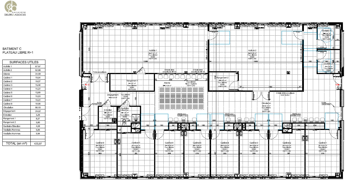
CARRE PRO Immobilier vous propose, au cœur de Saint Denis les Bourg, une commune dynamique et en plein essor de l'agglomération de Bourg-en-Bresse, un local d'activités de 19.54m² situé au 1er étage du programme "Les Cadalles". Il se compose :
D'une pièce principale avec un point d'eau (nommé Cabinet 1 sur le plan).
Vous disposerez des parties communes partagées : sanitaires PMR, tisanerie, salle d'attente.

Les atouts :
Locaux modernes
Aux normes ERP/PMR
Ascenseur
Grande facilité de stationnement : parking extérieur + places en sous-sol disponibles à la location (20 € HT/mois + charges)
Visibilité optimale sur un axe très fréquenté
Disponibilité immédiate

D'autres locaux sont disponibles du 13m² au 19m² puis 67m².

Conditions financières :
- Loyer : 381.86 € HT (soit 458.24 € TTC)
- Charges : 106.40€ (comprenant l'eau, le chauffage, l'électricité du local et toutes les charges d'entretiens liés aux parties communes).
- Taxe foncière : charge preneur

Dépôt de garantie : 2 mois de loyer HT-HC
Frais d'état des lieux : 150€
Frais rédaction d'acte : 250€

N'hésitez pas à nous contacter au 04 82 29 81 35 pour organiser une visite.

Votre futur environnement

Vos avantages

  • Aménagement personnalisé sur mesure
  • Tarifs compétitifs
  • Ouvre droit à des subventions sous certaines conditions
  • Sans frais d'agence ni de dossier

Demande d'informations

Votre service parc tertiaire SEMCODA


Votre commerciale CARRE PRO IMMOBILIER
Tél : 04 82 29 81 35

Ce bien vous plait ?

Vous préférez être recontacté
Vous avez pris connaissance que la SEMCODA traite les données recueillies pour répondre à vos demandes et s’assurer que vous avez bien reçus tous les éléments que vous souhaitez. Pour en savoir plus sur la gestion de vos données personnelles et pour exercer vos droits, reportez-vous aux mentions d’informations.