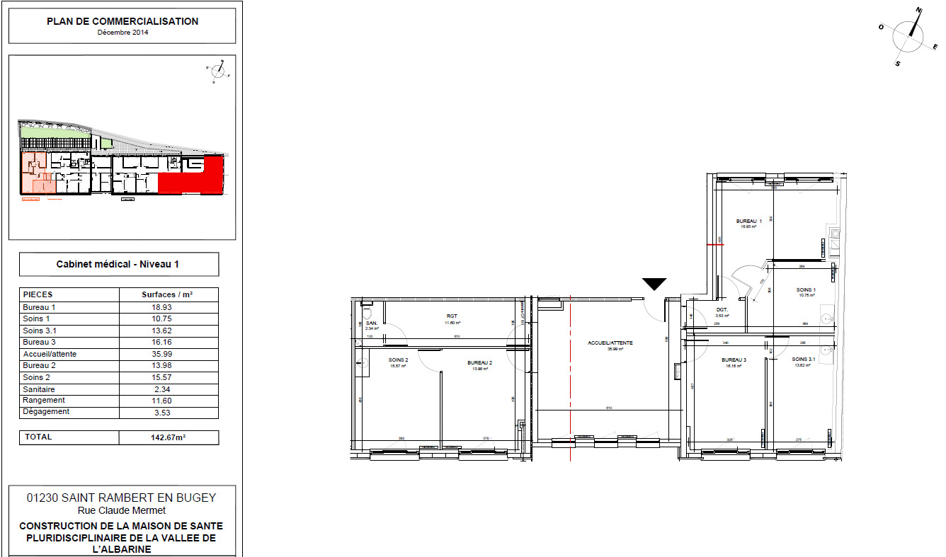
ST RAMBERT EN BUGEY - Cabinet Médical

14, rue Rue Claude Mermet
01230 Saint-Rambert-en-Bugey

Étage : 1
Pas de frais d’agence, ni frais de dossier
Dépôt de garantie 900 €

Loyer Mensuel C.C.
649 €
Superficie : 33m2
Réf. Semcoda : 2509-01-02-010
Contactez-nous

Bureau à Saint-Rambert-en-Bugey

A LOUER A ST RAMBERT EN BUGEY - Cabinet Médical

Idéalement situé, à 15 minutes d'Ambérieu en Bugey, commune desservie par la gare, 50 minutes de Lyon et de Bourg en Bresse, Carré Pro Immobilier vous propose un local professionnel au sein d'un Espace de Santé sur la commune de St Rambert en Bugey.

Ce local, d'une surface privative de 33.21 m² à laquelle s'ajoute une quote-part de surfaces communes de 24,12 m², est récent et respecte les normes PMR.
Local réservé à un médecin.
Il se compose d'une salle d'attente commune avec les autres médecins et dans le local deux pièces (une salle de soin avec point d'eau et un bureau).

Un parking est disponible pour l'accueil de vos patients.

- loyer mensuel est de 450 € (non soumis à Tva)
+ charges est de 199,58 € dont 87,91 € de chauffage.
- Dépôt de garantie : 2 mois de loyer HT-HC
- Taxe foncière : charge preneur

- Frais d'état des lieux : 150€
- Frais de rédaction d'acte : 250€
------------------------------
Les atouts :
- Parking
- Conforme aux normes PMR
- Très bon état général
------------------------------
Caractéristiques techniques :
- Etage : R+1
- Type d'énergie : Gaz naturel
- Type de chauffage : Collectif

Disponible immédiatement
Pour tout renseignement complémentaire, nous contacter au 04 82 29 81 35.

Votre futur environnement

Vos avantages

  • Aménagement personnalisé sur mesure
  • Tarifs compétitifs
  • Ouvre droit à des subventions sous certaines conditions
  • Sans frais d'agence ni de dossier

Demande d'informations

Votre service parc tertiaire SEMCODA


Votre commerciale CARRE PRO IMMOBILIER
Tél : 04 82 29 81 35

Ce bien vous plait ?

Vous préférez être recontacté
Vous avez pris connaissance que la SEMCODA traite les données recueillies pour répondre à vos demandes et s’assurer que vous avez bien reçus tous les éléments que vous souhaitez. Pour en savoir plus sur la gestion de vos données personnelles et pour exercer vos droits, reportez-vous aux mentions d’informations.