Appartement - T3 - AMBERIEUX EN DOMBES
113, rue DU LAVOIR Bâtiment 2 01330 AMBERIEUX EN DOMBES
01330 Ambérieux-en-Dombes
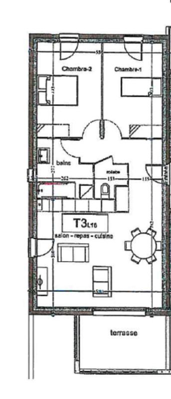
Nombre de pièces : 3
| Loyer Mensuel C.C.
730 € |
| Superficie : 69m2 |
| Réf. Semcoda : 7146-0002-0002-0014 |
| Contactez-nous |
Bel appartement T3 à Ambérieux-en-Dombes
Bel appartement lumineux situé dans une résidence récente datant de 2018 au cœur d'un petit village de la DOMBES, proche de VILLARD LES DOMBES.
Le logement comporte une cuisine ouverte sur séjour de 35m², de 2 chambres de plus 10m² disposant d'un placard mural et d'une salle de bain comportant une baignoire. Il dispose également d'un balcon de 10m².
Il y a la possibilité de louer un garage en supplément au prix de 58.49€ par mois.
Merci de nous contacter par mail à l'adresse mail suivante : meugenie.metral@semcoda.com
*Photos non contractuels.
Chauffage : Individuel. Gaz Naturel.
Loyer : 662 €/mois hors charges et 68 € de provision pour charges (régularisation annuelle), soit 730 €/mois de loyer charges comprises. .
Logement social soumis à condition d'attribution. Sous réserve de l'augmentation légale applicable au 01/01/2026. Logement ouvrant droit à l'aide au logement sous conditions de ressources.
Sans frais d'agence, ni frais de dossier.
Plans et photos non contractuels.
Les informations sur les risques auxquels ce bien est exposé sont disponibles sur le site géorisques : www.georisques.gouv.fr
SEMCODA - Bâtir le vivre ensemble.

Diagnostic GES : C

Votre futur environnement
Vos avantages
- Pas de frais de dossier ou d’agence
- Un dépôt de garantie limité à un mois de loyer
- Un loyer payable à terme échu
- Un service de proximité à l’écoute
- La possibilité de bénéficier d’une aide au logement (APL/AL)
- La possibilité d'obtenir une garantie d'Action Logement Services et une avance de dépôt de garantie.
Vos aides au logement
Vos conditions d'attribution
Demande d'informations