Appartement - T4 - L ARBRESLE
15, allée du Clos Landar 69210 L ARBRESLE
69210 L'Arbresle
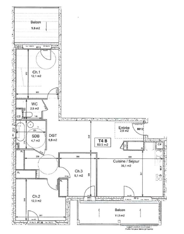
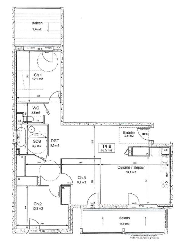
Nombre de pièces : 4
| Loyer Mensuel C.C.
1 150 € |
| Superficie : 83m2 |
| Réf. Semcoda : 6444-0001-0008-0011 |
| Contactez-nous |
Bel appartement T4 à L'Arbresle
SEMCODA vous propose un T4 dans un immeuble récent proche des transports en communs et des commodités situé au 01 étage avec ascenseur comprenant d'une belle pièce de vie avec cuisine ouverte. Trois chambres dont 2 disposant d'un placard mural. Salle de bain avec baignoire et WC séparé. Le logement dispose également de 2 balcons.
Immeuble avec entrée sécurisée, local à vélos .
Il y a la possibilité de louer un garage en sous-sol au prix d'environ 60€ par mois.
***Photos non contractuelle***
Chauffage : Collectif. Gaz Naturel.
Disponible le 12/08/2026.
Loyer : 948 €/mois hors charges et 202 € de provision pour charges (régularisation annuelle), soit 1150 €/mois de loyer charges comprises. .
Logement social soumis à condition d'attribution. Sous réserve de l'augmentation légale applicable au 01/01/2026. Logement ouvrant droit à l'aide au logement sous conditions de ressources.
Sans frais d'agence, ni frais de dossier.
Plans et photos non contractuels.
Les informations sur les risques auxquels ce bien est exposé sont disponibles sur le site géorisques : www.georisques.gouv.fr
SEMCODA - Bâtir le vivre ensemble.

Diagnostic GES : C

Votre futur environnement
Vos avantages
- Pas de frais de dossier ou d’agence
- Un dépôt de garantie limité à un mois de loyer
- Un loyer payable à terme échu
- Un service de proximité à l’écoute
- La possibilité de bénéficier d’une aide au logement (APL/AL)
- La possibilité d'obtenir une garantie d'Action Logement Services et une avance de dépôt de garantie.
Vos aides au logement
Vos conditions d'attribution
Demande d'informations