Appartement - T2 - L ARBRESLE
45, allée du Clos Landar 69210 L ARBRESLE
69210 L'Arbresle
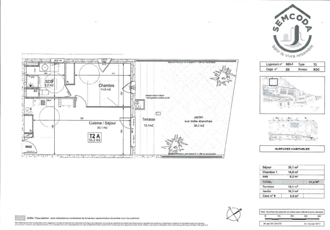
Nombre de pièces : 2
| Loyer Mensuel C.C.
703 € |
| Superficie : 51m2 |
| Réf. Semcoda : 6444-0002-0009-0001 |
| Contactez-nous |
Bel appartement T2 à L'Arbresle
SEMCODA vous propose un T2 dans un immeuble récent proche des transports en communs et des commodités situé au rez de chaussé comprenant d'une belle pièce de vie avec cuisine ouverte. Une chambre avec placard. Salle
de bain avec douche sèche serviette miroir luminaire WC. Jardin avec terrasse. Immeuble avec entrée sécurisée, local à
vélos, ascenseur. Possibilité de location de garage en souterrain : loyer mensuel = 60€/mois.
***Photos non contractuelles***
Chauffage : Collectif. Gaz Naturel.
Disponible le 08/05/2026.
Loyer : 575 €/mois hors charges et 128 € de provision pour charges (régularisation annuelle), soit 703 €/mois de loyer charges comprises. .
Logement social soumis à condition d'attribution. Sous réserve de l'augmentation légale applicable au 01/01/2026. Logement ouvrant droit à l'aide au logement sous conditions de ressources.
Sans frais d'agence, ni frais de dossier.
Plans et photos non contractuels.
Les informations sur les risques auxquels ce bien est exposé sont disponibles sur le site géorisques : www.georisques.gouv.fr
SEMCODA - Bâtir le vivre ensemble.

Diagnostic GES : C

Votre futur environnement
Vos avantages
- Pas de frais de dossier ou d’agence
- Un dépôt de garantie limité à un mois de loyer
- Un loyer payable à terme échu
- Un service de proximité à l’écoute
- La possibilité de bénéficier d’une aide au logement (APL/AL)
- La possibilité d'obtenir une garantie d'Action Logement Services et une avance de dépôt de garantie.
Vos aides au logement
Vos conditions d'attribution
Demande d'informations