CABINET MEDICAL - POLE SANTE - RILLIEUX LA PAPE - Avenue de l'Europe

28, Avenue de l'Europe
69000 Rillieux-la-Pape

Étage : Rez-de-chaussée
Pas de frais d’agence, ni frais de dossier
Dépôt de garantie 2873 €

Loyer Mensuel C.C.
1 698 €
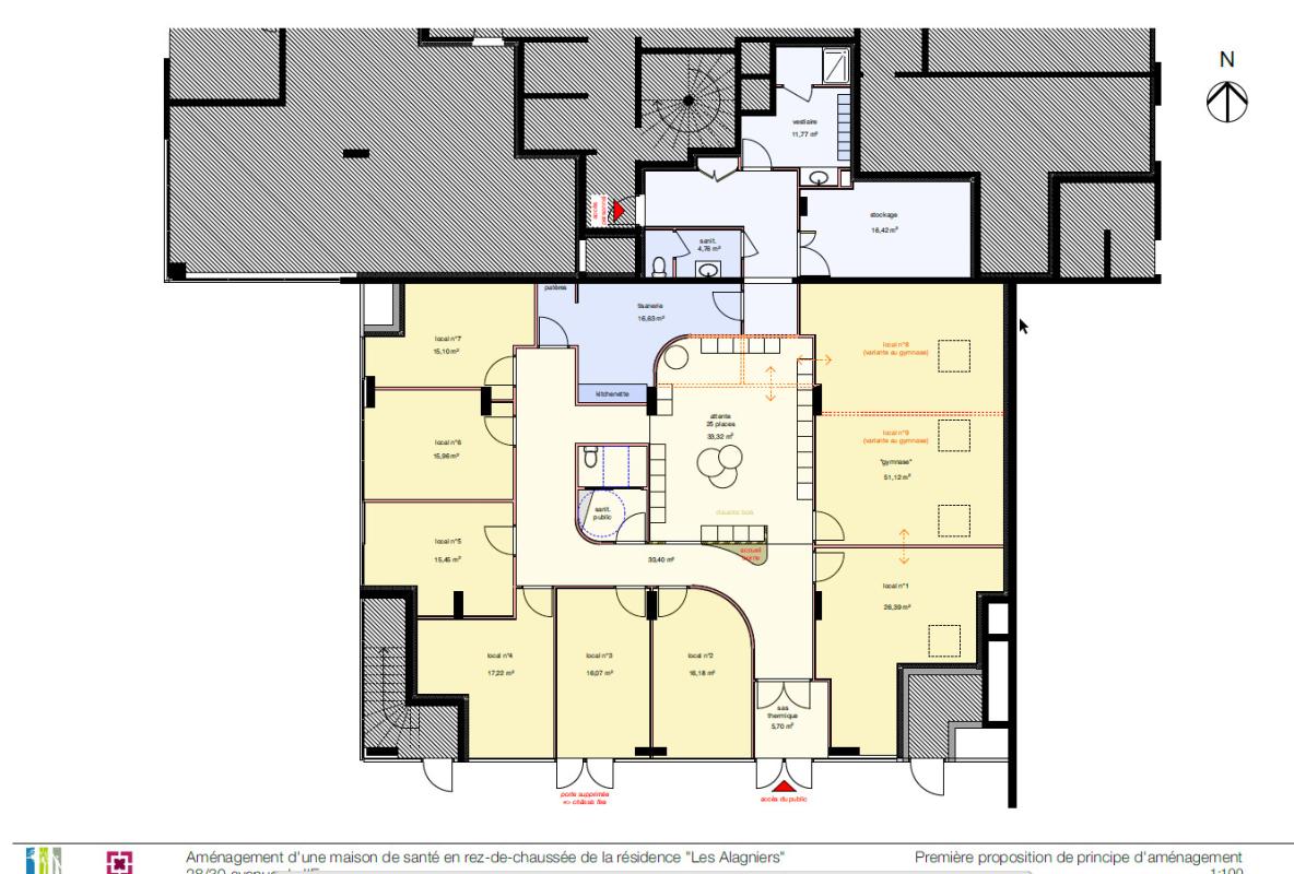
Superficie : 51m2
Réf. Semcoda : L9908-01-01-08
Contactez-nous

Bureau à Rillieux-la-Pape

À louer – Local professionnel destiné à un professionnel de santé , neuf (VEFA) – Rillieux-la-Pape, à 10 min de Lyon centre.

Idéalement situé en cœur de ville à Rillieux-la-Pape, au pied d'une résidence neuve de 84 logements destinée à une clientèle senior, ce cabinet professionnel proposé par Carré Pro Immobilier offre un cadre de travail moderne et fonctionnel.

D'une surface privative de 51.12 m² composé de 2 pièces équipées d'un point d'eau, le local bénéficie également de nombreux espaces partagés comprenant : salle d'attente, salle de convivialité, vestiaire, espace de stockage et sanitaires soit une surface totale de 87.07 m². L'ensemble est conforme aux normes PMR et ERP, garantissant accessibilité et confort pour tous.

Une place de stationnement en sous-sol est incluse pour les professionnels occupants.

Disponibilité : livraison prévue au 1er semestre 2027.

Conditions financières :
- Loyer mensuel : 1 436.62 € HT (soit 1732.95 € TTC)
- Charges : 261.20€ / mois
- Dépôt de garantie : 2 mois de loyer HT hors charges
- Taxe foncière : à la charge du preneur

Frais annexes :
- Rédaction d'acte : 300€
- Frais d'état des lieux : 180€

Plusieurs locaux de différentes surfaces sont disponibles.
N'hésitez pas à nous contacter pour plus de renseignements au 04.74.50.98.44.

Votre futur environnement

Vos avantages

  • Aménagement personnalisé sur mesure
  • Tarifs compétitifs
  • Ouvre droit à des subventions sous certaines conditions
  • Sans frais d'agence ni de dossier

Demande d'informations

Votre service parc tertiaire SEMCODA


Mélanie MICHOUD
Tél : 04 74 22 80 16
Mobile : 06 99 12 74 17

Ce bien vous plait ?

Vous préférez être recontacté
Vous avez pris connaissance que la SEMCODA traite les données recueillies pour répondre à vos demandes et s’assurer que vous avez bien reçus tous les éléments que vous souhaitez. Pour en savoir plus sur la gestion de vos données personnelles et pour exercer vos droits, reportez-vous aux mentions d’informations.