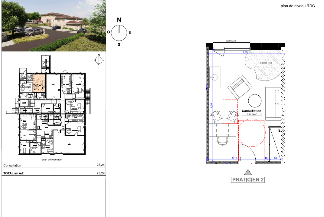
ST CYR SUR MENTHON - Cabinet 23.24 m²
200, Rue du centre
01000 Saint-Cyr-sur-Menthon
Nombre de pièces : 1
Pas de frais d’agence, ni frais de dossier
Dépôt de garantie 612 €
Loyer Mensuel C.C.
423 € |
Superficie : 23m2 |
Réf. Semcoda : 9884-0001-0001-0002 |
Contactez-nous |
Bureau à Saint-Cyr-sur-Menthon
A ST CYR SUR MENTHON - Au sein de l'Espace de Santé
CARRE PRO Immobilier vous propose de venir compléter une équipe de professionnels de santé composé de 2 médecins, 2 sages-femmes, deux cabinets infirmiers, une infirmière ASALEE, une ostéopathe.
La location comprend le cabinet privatif (cab 2), la salle d'attente partagée, une salle de réunion et/ou de repas pour vous permettre de vous restaurer sur place.
Le cabinet d'une surface de 23.24m² est proposé à la location au tarif de 367.76 € TTC/mois.
Le montant des charges estimé est de 117.56 €/mois comprenant l'ensemble des abonnements et contrats de maintenance nécessaires pour la bonne exploitation du cabinet hors ménage, eau et abonnement internet.
Dépôt de garantie : 2 mois de loyer HT- HC.
Disponible au 04 Octobre 2025.
Les atouts :
- Immeuble neuf - aux normes PMR, acoustiques et thermiques
- Emplacement de qualité
- Facilité d'accès grâce au parking
Les équipements:
- Pompe à chaleur avec rafraichissement
- Parking avec places réservées pour les patients de l'espace de santé
CARRE PRO Immobilier est la marque des locaux professionnels de la SEMCODA = aucun frais d'agence, ni de dossier.
Pour toutes informations complémentaires, contactez Noémie GUILLOT-JEROME au 04.74.50.98.48.
Votre futur environnement
Vos avantages
- Aménagement personnalisé sur mesure
- Tarifs compétitifs
- Ouvre droit à des subventions sous certaines conditions
- Sans frais d'agence ni de dossier
Demande d'informations
