ST RAMBERT EN BUGEY - Local professionnel
14, rue Rue Claude Mermet
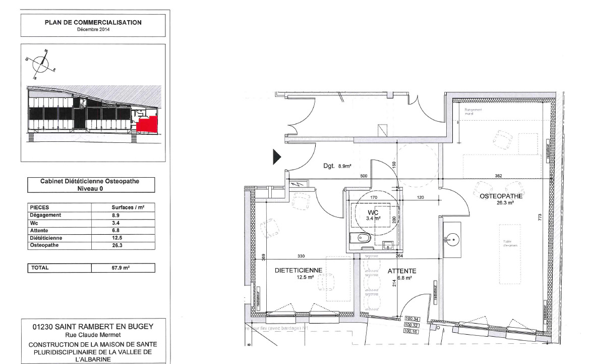
01230 Saint-Rambert-en-Bugey
Pas de frais d’agence, ni frais de dossier
Dépôt de garantie 600 €
Loyer Mensuel C.C.
450 € |
Superficie : 26m2 |
Réf. Semcoda : 2509-0001-0001-0002 |
Contactez-nous |
Bureau à Saint-Rambert-en-Bugey
À LOUER – LOCAL PROFESSIONNEL AU CŒUR DE ST RAMBERT EN BUGEY (01)
Opportunité rare au sein d'un espace santé dynamique !
Situé à seulement 15 minutes d'Ambérieu-en-Bugey et à moins d'une heure de Lyon et de Bourg-en-Bresse, découvrez ce local professionnel idéalement implanté à Saint-Rambert-en-Bugey, charmante commune de l'Ain, nichée dans un environnement naturel verdoyant, desservie par une gare SNCF. Un cadre paisible et propice à l'installation de votre activité, tout en restant proche des grands axes.
Le local en quelques mots :
Surface : 26,30 m² au rez-de-chaussée d'un immeuble récent et sécurisé, aux normes PMR
Dénomination sur plan : "Ostéopathe"
Parties communes : salle d'attente et sanitaires partagés
Parking : places disponibles pour accueillir vos patients en toute sérénité
Conçu spécialement pour les professionnels de santé, ce local vous permet de rejoindre une structure dédiée aux métiers du soin, déjà fréquentée par une patientèle locale.
-Loyer mensuel : 300 € (non soumis à TVA)
+ Charges mensuelles : 149,68 € (incluant chauffage, électricité privative, eau, ordures ménagères, entretien des communs)
- Dépôt de garantie : 2 mois de loyer hors charges
- Taxe foncière : 190 €/an
- Frais d'état des lieux : 144 €
Les + de ce bien :
Local en très bon état général
Accessibilité PMR
Stationnement facile
Chauffage collectif au gaz naturel
Disponibilité immédiate – installez-vous sans attendre !
Pour en savoir plus ou organiser une visite, contactez Mme NANIA au 04 82 29 81 35.
Votre futur environnement
Vos avantages
- Aménagement personnalisé sur mesure
- Tarifs compétitifs
- Ouvre droit à des subventions sous certaines conditions
- Sans frais d'agence ni de dossier
Demande d'informations
