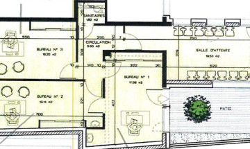
Professionnels, louez dans la commune de Faramans (38260)