SEMCODA BAILLEUR SOCIAL ET DEVELOPPEUR DE TERRITOIRE
Bailleur social pour tous :
Logement social, accession sociale à la propriété, avec la SEMCODA vous pouvez louer un appartement dans un habitat collectif ou dans une résidence, un pavillon en ville ou à la campagne, mais aussi acheter un logement neuf, préférer un logement dans de l’ancien avec le service vente de patrimoine, ou un terrain à bâtir. Toutes nos agences et tous nos bureaux sont à votre disposition pour vous accompagner dans votre projet de logement et réussir votre parcours résidentiel.
Solutions pour professionnels :
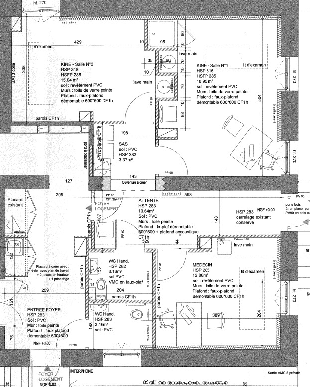
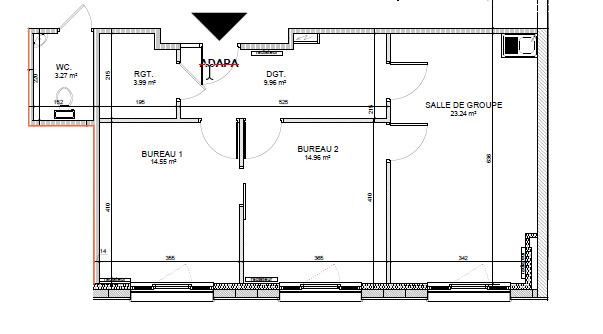
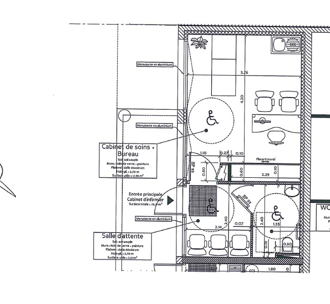
Locaux commerciaux, Locaux professionnels, cabinets médicaux et paramédicaux, crèches, EHPAD, gendarmerie… Locaux achevés, surfaces à personnaliser ou plateaux à agencer, renseignez-vous pour vous installer dans les départements de l’Ain, du Rhône, de l’Isère, de la Savoie, de la Haute Savoie et de la Saône et Loire. La SEMCODA possède un parc de locaux tertiaires à vendre ou à louer et peut aussi vous proposer des tènements pour accueillir vos projets sur des zones d’activités.
Partenaire des communes :
Accompagner les projets des communes et collectivités territoriales, imaginer avec elles des programmes, des équipements révélateurs de leur potentiel, réhabiliter les patrimoines pour le confort et le budget de leurs habitants et limiter l’empreinte énergétique des bâtiments, rénover dans les règles de l’art du bâti remarquable… en un mot être votre maître d’œuvre ou maître d’ouvrage pour imaginer avec vous un vivre ensemble de qualité.